Nuova Villa Singola in Classe A

In vendita
Villa
Varese (Schiranna)
645.000 €
Descrizione
✨ Se stai cercando una villa indipendente moderna, efficiente e a pochi minuti dal lago e dal centro città, questa è la tua occasione.

📍 Situata nella splendida zona residenziale della Schiranna (Varese), proponiamo una villa singola di nuova costruzione con giardino privato, terrazzo panoramico, box doppio in larghezza.

🔹 Superficie complessiva commerciale: ~180 mq
🏠 Distribuzione interna:

Piano Terra:

🛋️ Soggiorno/pranzo open space da 38,23 mq con accesso diretto al portico e giardino

🍽️ Cucina separata da 9,65 mq, comoda e luminosa

🚿 Bagno finestrato da 4,49 mq

🚗 Box doppio in larghezza da 31 mq con accesso diretto all'abitazione

🪴 Portico coperto ideale per zona pranzo estiva

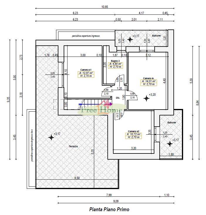
Piano Primo:

🛏️ Camera matrimoniale da 14,07 mq

🛏️ Camera doppia da 12,97 mq

🛏️ Camera singola/studio da 10,72 mq

🚿 Bagno principale da 4,90 mq

🌅 Terrazzo panoramico da oltre 30 mq e balconi perimetrali

Ottima esposizione solare, tutti gli ambienti sono finestrati

⚙️ Dotazioni tecniche e comfort:

Classe energetica A (in fase di ottenimento A4)

Pompa di calore caldo/freddo

Riscaldamento a pavimento

Impianto fotovoltaico autonomo

Serramenti in PVC con triplo vetro a taglio termico

Climatizzazione, antifurto e VMC

Isolamento termoacustico avanzato

Nessun impianto a gas

💡 Plus aggiuntivi:

Zona tranquilla ma servita

Ampi spazi interni ed esterni

Garanzia decennale post-vendita

📸 I render e i servizi fotografici completi sono disponibili su richiesta.
Caratteristiche principali
Codice:
Schira
Città:
Varese (Schiranna)
Categoria:
Villa
Locali:
6
Mq:
185
Classe energetica:
A4
Stato Immobile:
Prossima Realizzazione
Grado:
Signorile
Posizione:
Lago
Panorama:
Vista Lago
Orientamento:
Nord Ovest Sud Est
Lati Liberi:
4
Giardino:
Privato
Arredi:
Non Arredato
Tipo Soggiorno:
Soggiorno
Tipo Cucina:
Abitabile
Riscaldamento:
Autonomo
Tipo Riscaldam.:
Pompa di Calore
Tipo Impianto:
Pavimento
Fonte Energetica:
Fotovoltaico
Acqua Calda:
Autonoma
Infissi:
PVC Triplo Vetro
Serramenti:
Nuovo
Mappa
Via macchi 130 - Varese (VA)
Richiedi informazioni
Invia
Cookie preference