BIFAMILIARE VILLA ROSSI

In vendita
Villa
Malnate
409.000 €
Descrizione
Splendida villetta bifamiliare inserita in un contesto tranquillo e residenziale, ideale per chi ama spazi ampi e luminosi, comfort abitativo e momenti di relax all'aperto.

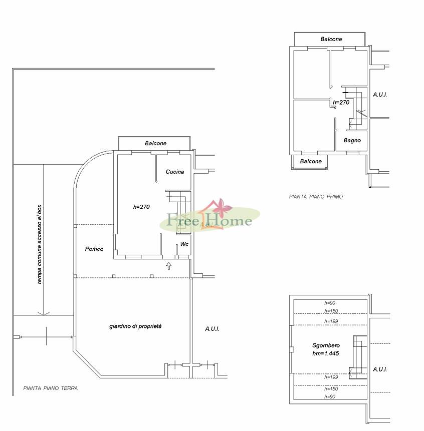
L'immobile si sviluppa su più livelli, offrendo al piano interrato un grande box doppio, ideale per ospitare comodamente due auto e ulteriori spazi da destinare a deposito o cantina.

Al piano terra troviamo un'accogliente e spaziosa zona living, perfetta per la vita familiare e l'intrattenimento degli ospiti, completata da un bagno funzionale. La zona giorno si apre su un incantevole giardino privato arricchito da uno splendido porticato, uno spazio privilegiato per pranzi, cene e momenti di convivialità all'aperto.

Salendo al primo piano, la zona notte è composta da tre luminose camere da letto, tutte dotate di balcone, che offrono spazi confortevoli e piacevoli affacci. A completamento di questo livello è presente il bagno principale

Al piano superiore si apre un grande open space particolarmente luminoso e versatile, che permette la possibilità di ricavare altre camere dedicate agli ospiti o ad attività di svago, hobby o lavoro da casa.

Si precisa che alcune immagini presenti nell'annuncio sono render esemplificativi volti a suggerire possibili soluzioni di arredo e ottimizzazione degli spazi interni.
Caratteristiche principali
Codice:
V000942
Città:
Malnate
Categoria:
Villa
Locali:
8
Camere:
3
Bagni:
2
Mq:
250
Box:
1
Mq Box:
40
Posti auto:
2
Terrazzi:
3
Anno:
2015
Classe energetica:
In fase di valutazione
Stato Immobile:
Nuovo
Grado:
Signorile
Posizione:
Collina
Panorama:
Vista Aperta
Orientamento:
Sud Ovest
Lati Liberi:
3
Giardino:
Privato
Arredi:
Non Arredato
Tipo Soggiorno:
Doppio
Tipo Cucina:
Abitabile
Riscaldamento:
Autonomo
Tipo Riscaldam.:
Caldaia a Condensazione
Tipo Impianto:
Pavimento
Fonte Energetica:
Metano
Acqua Calda:
Autonoma
Raffrescamento:
No
Infissi:
Legno Doppio Vetro
Serramenti:
Ottimo
Persiana:
Persiana Legno
Pavim. Giorno:
Personalizzato
Pavim. Notte:
Personalizzato
Pavim. Cucina:
Personalizzato
Pavim. Bagno:
Personalizzato
Isolamento termico:
Cappotto interno
Isolamento acustico:
Isolamento pareti
Accessori
Antifurto
Aria Condizionata
Armadio a Muro
Ascensore
Bagno Handicap
Camino
Canna Fumaria
Cassaforte
Cancello Elettrico
Darsena Posto Barca
Doppi Vetri
Doppio Ingresso
Fibra Ottica
Filo Diffusione
Geotermia
Impianto Domotica
Impianto Fotovoltaico
Impianto Satellitare
Inferriate
Ingresso Indipendente
Lavanderia
Locale Fumatori
No Animali
No Bambini
Pannelli Solari
Parco Condominiale
Passaggio Automobilistico
Passaggio Pedonale
Piscina
Porta Blindata
Portineria/Custode
Rete Dati
Ripostiglio
Stufa a Pellet
Tapparelle Elettriche
Tavolini Esterni
Tennis
Tende da Sole
Vasca Idromassaggio
Veranda
Video Citofono
Video Sorveglianza
Zanzariere
Mappa
Via tagliabue - Malnate (VA)
Distanze
Posizione
Centro500 m
Istruzione
Scuola materna1 km
Scuola elementare1 km
Scuola media1 km
Mezzi di trasporto
Aeroporto25 km
Fermata metro-bus-tram500 m
Stazione dei treni2 km
Altri servizi
Banca500 m
Chiesa1 km
Farmacia500 m
Supermercato500 m
Richiedi informazioni
Invia
Cookie preference