Villa in vendita a Carnago

In vendita
Villa
Carnago
515.000 €
Descrizione
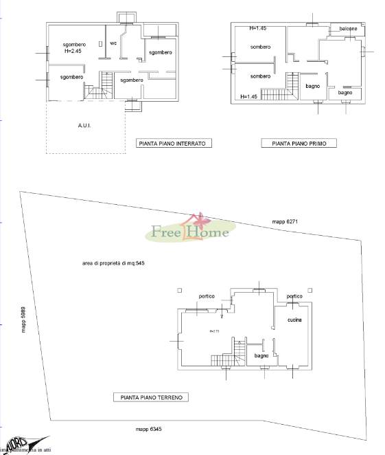
In una via residenziale riservata, questa villa unisce stile di vita all’aperto, efficienza e sicurezza. Al piano terra la zona giorno è luminosa e continua verso l’esterno: i portici diventano un secondo living per pranzi, smart-working e relax a bordo piscina (predisposizione riscaldamento per prolungare la stagione).
Al piano superiore troviamo uno studio, 3 camere con balcone e servizi ben distribuiti garantiscono privacy e funzionalità. La tecnologia lavora in silenzio per te: FV 6 kW, caldaia a condensazione, allarme con telecamere perimetrali e volumetriche. Autorimessa e pertinenze completano una proprietà pensata per chi vuole vivere bene, spendere meno e godersi spazi esterni veri.

Punti di forza (benefit first)

Vivi all’aperto: doppi portici + giardino ~300 mq

Benessere & divertimento: piscina terminata nel 2024 con idromassaggio (pred. riscaldamento)

Bollette leggere: fotovoltaico 6 kW + caldaia a condensazione

Sicurezza avanzata: allarme con telecamere perimetrali e volumetriche

Comfort quotidiano: zona giorno luminosa, 3 camere al piano primo, balcone

Privacy e quiete: contesto residenziale di Via Ronco 93 (Carnago)

Autorimessa e spazi esterni funzionali
Caratteristiche principali
Codice:
V000894
Città:
Carnago
Categoria:
Villa
Locali:
9
Camere:
4
Bagni:
4
Mq:
290
Box:
1
Posti auto:
1
Mq Giardino:
300
Balconi:
1
Anno:
2006
Classe energetica:
B
74,78
Stato Immobile:
Ottimo
Grado:
Signorile
Posizione:
Collina
Panorama:
Vista Aperta
Orientamento:
Nord Ovest Sud Est
Lati Liberi:
4
Giardino:
Privato
Arredi:
Possibilità
Tipo Soggiorno:
Soggiorno
Tipo Cucina:
Abitabile
Riscaldamento:
Autonomo
Tipo Riscaldam.:
Caldaia
Tipo Impianto:
Radiatori
Acqua Calda:
Autonoma
Infissi:
Legno Doppio Vetro
Serramenti:
Ottimo
Persiana:
Persiana PVC
Pavim. Giorno:
Ceramica
Pavim. Notte:
Parquet
Pavim. Cucina:
Ceramica
Pavim. Bagno:
Ceramica
Accessori
Armadio a Muro
Canna Fumaria
Cassaforte
Cancello Elettrico
Doppi Vetri
Fibra Ottica
Lavanderia
Piscina
Mappa
VIA RONCO, 93 - Carnago (VA)
Richiedi informazioni
Invia
Cookie preference